1. TOPTOP
  2. 物件検索
  3. メガロコープ西陣A棟

メガロコープ西陣

一般物件 ID:41039

メガロコープ西陣A棟

棟情報はコチラ

京都市上京区五辻通浄福寺西入る一色町27-1

市バス 今出川浄福寺停 徒歩1分

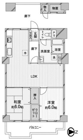
間取り
2LDK
専有面積
59.56m2
築年数
1972年6月
所在階
8階
  • バス・トイレ別
  • 食器洗浄乾燥機
  • フローリング
  • バルコニー

2025年9月改装

物件詳細情報

間取り詳細
LDK14.3帖 洋室6帖 洋室6帖
所在階/建物階建
8階 / 13階 (エレベーター有)
主要採光面
西
修繕積立金
12,500円
共益費・管理費
7,360円
入居/引渡時期
相談
現況
空家
小学校区
乾隆
中学校区
嘉楽
建物構造
SRC(鉄骨鉄筋コンクリート)
総戸数
405戸
管理会社
ユニチカライフ㈱
駐車場
60台
自転車置き場
設備・特長
バス・トイレ別 / 食器洗浄乾燥機 / フローリング / バルコニー
備考
【2025年9月改装】 ・キッチン新設(タッチレス水栓、食洗機、3口コンロ搭載) ・ユニットバス新設(浴室乾燥機) ・洗面化粧台新設(3面鏡、コンセント付) ・トイレ新設(フルオート便座、温水洗浄搭載) ・洗濯パン新設(ドラム式洗濯機対応) ・LDK一面エコカラット施工 司法書士は売主の指定になります
取引態様
仲介
更新日
2025/06/26
次回更新予定日
2026/02/21
取扱会社
RST本店  京都府知事(3)13146号
京都市下京区室町通四条下ル鶏鉾町501
075-351-4567

※物件概要は弊社調査時点での情報ですので、情報が古くなって いる可能性がございます。ご了承下さい。
※「ペット可」の物件につきましては、各マンション規約による制限がございます。

周辺マップ

  • 小・中学校
  • 病院・診療所など
  • 保育園・幼稚園
  • スーパーなど
  • コンビニ

ローンシミュレーション

SNSでシェア

同じ棟の別のお部屋

  • 2190万円

    2LDK 【63.46m2】

    5階

  • 1999万円

    2LDK 【69.27m2】

    11階

お近くの物件

  • 会員様専用物件 会員登録はコチラから
    物件画像
    会員様専用物件

    会員様のみ閲覧できます

    34,800万円

    3LDK

    会員様のみ閲覧できます

  • 会員様専用物件 会員登録はコチラから
    物件画像
    会員様専用物件

    会員様のみ閲覧できます

    25,000万円

    2LDK

    会員様のみ閲覧できます

  • メガロコープ西陣A棟

    メガロコープ西陣A棟

    2,190万円

    2LDK 【63.46m2】

    市バス 今出川浄福寺停 徒歩1分

  • 会員様専用物件 会員登録はコチラから
    物件画像
    会員様専用物件

    会員様のみ閲覧できます

    3,990万円

    3LDK

    会員様のみ閲覧できます

  • 会員様専用物件 会員登録はコチラから
    物件画像
    会員様専用物件

    会員様のみ閲覧できます

    3,390万円

    3LDK

    会員様のみ閲覧できます

  • 会員様専用物件 会員登録はコチラから
    物件画像
    会員様専用物件

    会員様のみ閲覧できます

    1,598万円

    1R

    会員様のみ閲覧できます

  • 会員様専用物件 会員登録はコチラから
    物件画像
    会員様専用物件

    会員様のみ閲覧できます

    1,691万円

    1K

    会員様のみ閲覧できます

  • 京都上京ハウス4号棟

    京都上京ハウス4号棟

    2,080万円

    4LDK 【75.6m2】

    市バス 千本今出川停 徒歩2分

  • 会員様専用物件 会員登録はコチラから
    物件画像
    会員様専用物件

    会員様のみ閲覧できます

    1,860万円

    1K

    会員様のみ閲覧できます

  • 会員様専用物件 会員登録はコチラから
    物件画像
    会員様専用物件

    会員様のみ閲覧できます

    6,480万円

    2LDK

    会員様のみ閲覧できます

メガロコープ西陣RST本店の取り扱い物件です。
電話で問い合わせる TEL:075-351-4567

この物件について

ようこそ!RST京都マンションへ

こんにちは!様

MENU